

Bauplan: K. Singer
.
.
.
Anmerkungen:
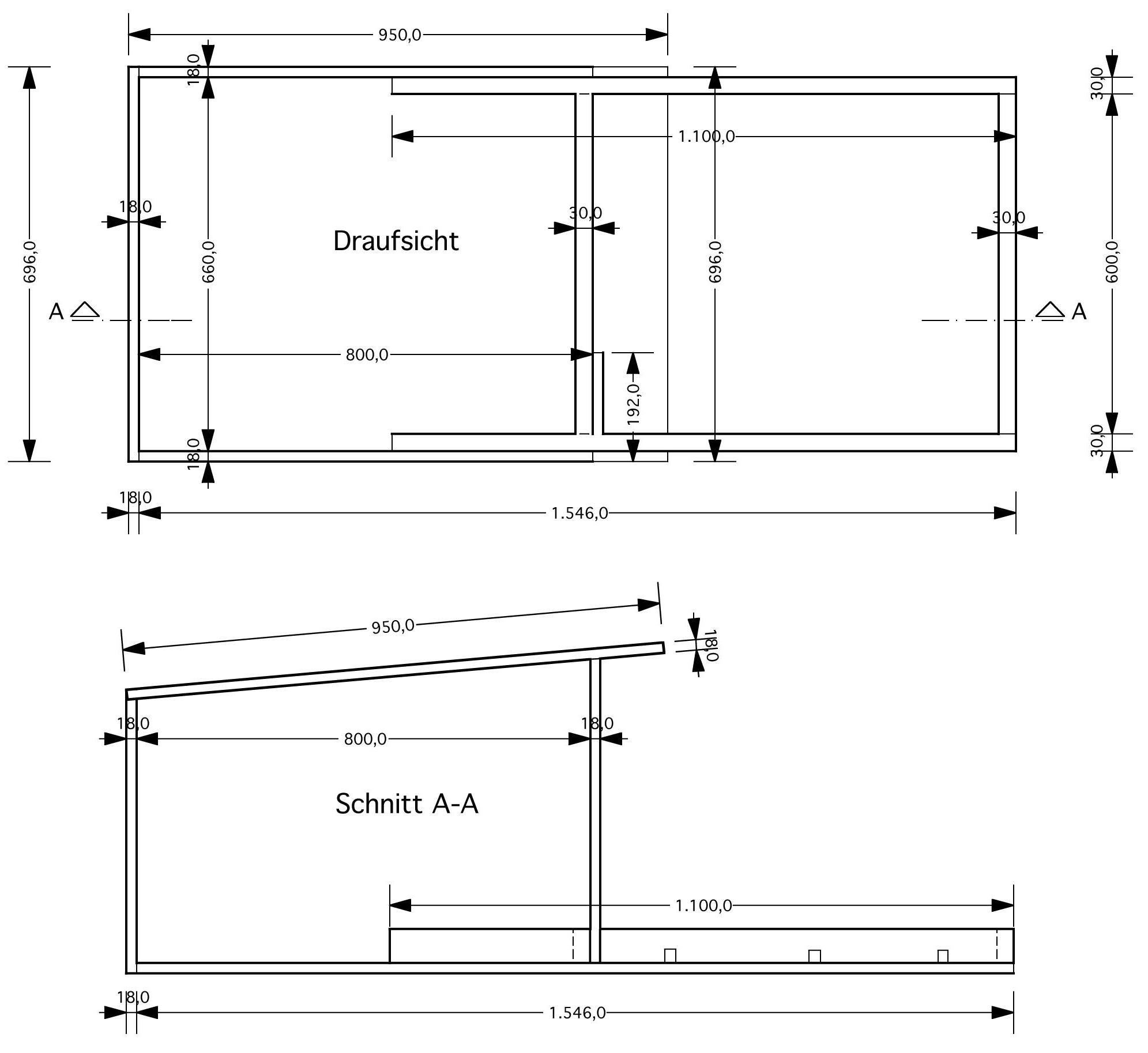
· Alle Maße in mm
· Material: Siebdruckplatten wasserfest, Stärke 18 mm
· Verschrauben der Platten mit Edelstahl-Schrauben Torx
· Dach mit Bitumen-Schweißfolie (heiß aufgebracht) abdecken (bei Montage im Außenbereich)
· Einflugöffnung halboffen; Anbringung der ca. 20 cm breiten Abdeckplatte bei Sicht von vorne:
Montage der Nisthilfe auf der Ostseite → links, Montage der Nisthilfe auf der Nordseite → rechts
· Gesamte Bodenplatte für Wasserabfluss mit konischen Löchern (verstopfen nicht) versehen
(Innenraum: Oberkante 8 mm, Unterkante 15 mm; Anflugbrett: Oberkante 15 mm, Unterkante 20 mm)
· Sitzleisten an der Einflugöffnung und den Rändern des Anflugbretts aus witterungsbeständigem Holz
(z. B. Lärche), 6 cm hoch, 3 cm stark und oben abgerundet
· Boden im Innenraum ca. 5 cm hoch mit gewaschenem Riesel (= feiner Rollkies Ø 10-15 mm) bedecken !!!
· Dach und Anflugbrett mit weißen wasserfesten Farbklecksen (Vortäuschung Kotspritzer) versehen !!!
· Gewicht Kasten ca. 45 kg, Gewicht Einstreu ca. 35 kg → insgesamt ca. 80 kg
